Installer des cartes d’extension dans le Mac Pro (rack)
Vous pouvez configurer votre Mac Pro en installant des cartes supplémentaires dans les logements d’extension PCI Express.
Tous les logements sont connectés par l’intermédiaire d’un commutateur PCI Express situé sur la carte logique principale du Mac Pro. La bande passante du commutateur PCI Express est automatiquement configurée par le biais des allocations de groupes. Vous pouvez utiliser Utilitaire d’emplacement d’extension pour configurer manuellement les allocations de groupes. Pour en savoir plus sur Utilitaire d’emplacement d’extension, consultez l’article Installation de cartes PCIe dans votre Mac Pro de l’assistance Apple.
Pour obtenir des performances optimales, utilisez un logement qui présente au moins autant de lignes que la carte utilisée. Consultez le tableau ci-dessus pour obtenir des détails.
Les modules MPX du Mac Pro à processeur Intel ne sont pas pris en charge dans le Mac Pro doté d’une puce Apple.
Remarque : ces options concernent le Mac Pro en rack doté d’une puce Apple. Si vous avez un Mac Pro en rack à processeur Intel, consultez la rubrique Installer des cartes d’extension dans le Mac Pro. Si vous avez un Mac Pro au format tour, consultez la rubrique Installer des cartes d’extension dans le Mac Pro.
Logement | Nombre de lignes | Prise en charge PCI Express |
|---|---|---|
Logement 7 | x4 (préinstallation avec la carte E/S Apple) | PCIe 3.0 |
Logement 6 | x8 | PCIe 4.0 |
Logement 5 | x8 | PCIe 4.0 |
Logement 4 | x8 | PCIe 4.0 |
Logement 3 | x8 | PCIe 4.0 |
Logement 2 | x16 | PCIe 4.0 |
Logement 1 | x16 | PCIe 4.0 |
Le Mac Pro dispose de quatre logements double largeur et trois logements simple largeur, qui peuvent être personnalisés avec des cartes pour étendre les capacités du Mac Pro. La carte E/S Apple est préinstallée dans le logement 7, mais elle peut être retirée afin d’installer d’autres cartes PCIe.

AVERTISSEMENT : pour une ventilation optimale, espacez les cartes lorsque vous les installez. Si vous retirez une carte et n’en installez pas une autre à la place, mettez un cache d’accès au port sur le logement vide pour éviter que des corps étrangers pénètrent dans le boîtier. Un logement sans cache peut entraîner des dommages en modifiant le flux d’air qui refroidit les composants internes.
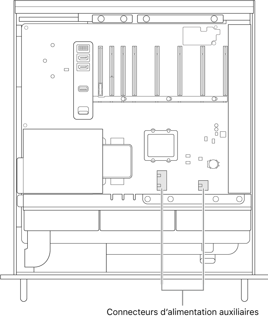
Important : connectez les cartes à la bonne source d’alimentation, comme le montre l’illustration ci-dessous. Utilisez uniquement des câbles vendus en ligne à l’adresse apple.com ou dans un Apple Store, ou des câbles livrés avec des cartes PCIe tierces compatibles.
Faites attention lors de la connexion aux connecteurs AUX. Lorsque vous installez dans votre système un accessoire qui utilise l’alimentation AUX, commencez par fixer le connecteur AUX, puis installez le module. Faites attention de ne pas faire tomber le module lorsqu’il est connecté au connecteur AUX, car cela pourrait endommager le connecteur AUX ou la carte logique. Si le connecteur AUX est endommagé, n’allumez pas votre ordinateur, car cela pourrait provoquer d’autres dommages. Pour en savoir plus sur la réparation de votre Mac Pro, consultez la rubrique Informations importantes relatives à la sécurité de votre Mac.

Suivez ces étapes pour installer des cartes d’extension dans votre Mac Pro.
Éteignez votre Mac Pro en choisissant le menu Pomme
> Éteindre.Laissez-le refroidir pendant 5 à 10 minutes avant de toucher les composants internes qui peuvent être chauds.
Débranchez tous les câbles de votre Mac Pro, à l’exception du câble d’alimentation.
Touchez le métal à l’extérieur de votre Mac Pro pour décharger toute électricité statique.
Remarque : déchargez toujours l’électricité statique avant de toucher des pièces ou d’installer des composants à l’intérieur de votre Mac Pro. Pour éviter de générer de l’électricité statique, ne marchez pas dans la pièce tant que vous n’avez pas terminé l’installation des cartes d’extension.
Débranchez le câble d’alimentation.
Faites glisser le Mac Pro hors du rack.
Remarque : Vous pouvez installer des cartes d’extension tout en laissant le Mac Pro installé sur in rack.
Poussez les loquets de chaque côté du cache vers l’intérieur, puis soulevez le cache et faites-le glisser hors de l’ordinateur.

Retirez les supports latéraux nécessaires.
Si vous installez une carte dans le logement 1, 2, 3 ou 4, retirez le support latéral en bas à droite.
Si vous installez une carte dans le logement 5, 6 ou 7, retirez le support latéral en haut à droite.
Si vous installez une carte pleine largeur, retirez le support latéral gauche.

Retirez les caches des logements.

Faites glisser le dispositif de verrouillage vers la droite.

Retirez la nouvelle carte de son emballage antistatique et tenez-la par les coins. Ne touchez pas le connecteur en or ou les composants de la carte.
Remarque : utilisez uniquement des modules PCIe qui disposent d’une certification de sécurité (CSA, UL ou équivalent) et qui indiquent implicitement qu’ils sont conformes à la spécification PCIe de la norme industrielle.
Faites glisser la carte en place.

Faites glisser le dispositif de verrouillage vers la gauche.

Réinstallez les supports latéraux de droite. Si vous avez installé une carte pleine largeur et avez également retiré le support latéral gauche, réinstallez-le aussi.

Remettez le cache en place, en vous assurant que les loquets sont verrouillés.
Le Mac Pro ne peut pas démarrer tant que le couvercle n’a pas été remis en place.

Replacez le Mac Pro dans le rack.
Rebranchez tous les câbles de votre Mac Pro, y compris le câble d’alimentation.